Renovierung - Geschichte zur Erneuerung

Nach einer Bauzeit von fast auf den Tag genau eineinhalb Jahren erfolgte die Einweihung unserer Kirche am 15.11.1893.

Wenn man bedenkt, dass unsere Gemeinde erst am 01. April 1890 gegründet wurde und schon zweieinhalb Jahre später die Kirche eingeweiht wurde, so war dies eine enorme finanzielle Belastung für die damals junge Gemeinde, zumal die Gemeinde von der Muttergemeinde Wengern nur 45.000 Mark erhielt und die Kostenschätzung für den Kirchbau 90.000 Mark betrug. In nur drei Jahren war es den Bommeranern gelungen, 45.000 Mark zu sammeln.

Kirchmeister Lohmann schenkte "zwei Morgen" als Bauplatz und Frau Dr. Reese stiftete die ersten 3000 Mark. Die tatsächlichen Baukosten waren etwas geringer. Für Glocken, Altargemälde und die andere Innenausstattung waren Schenkungen vorgesehen.

1912 bekam die Kirche elektrisches Licht und die Zentralheizung wurde bereits 1924 eingebaut. 1924 entstand auch das folgende Bild. Unsere Kirche auf dem Berg, unterhalb noch die leeren Ackerflächen des heutigen Bommerfelds. An der Ruhr entstand das Wasserkraftwerk Hohenstein.

 

Innenansicht um 1920

Unsere Kirche "auf dem Berg", davor das noch unbebaute Bommerfeld.

Im Ersten Weltkrieg wurden die beiden großen Glocken für Kriegszwecke ausgebaut und eingeschmolzen. 24 Jahre riefen diese Glocken die Gemeinde, dann mussten sie auf Anordnung des Reichsmilitärfiskus vom 28. Juni 1917 zur Kriegsproduktion abgegeben werden. Im Turm mussten die Decken abgenommen werden, um die Glocken abzumontieren. Vor dem Kirchenportal wurden sie von einigen Konfirmanden mit Girlanden geschmückt und auf Lastwagen am 08.07.1917 fortgefahren. Am 15. Oktober 1924 wurden beim Bochumer Verein drei Gussstahlglocken bestellt, welche dann am 20. Dezember 1924 geliefert wurden. Bis auf kleinere Schäden an den Kirchenfenstern blieb die Kirche im Zweiten Weltkrieg von weiteren Schäden verschont. Im Jahr 1978 wurde eine neue Orgel eingebaut und die Kirche wurde mit einem neuen Innenanstrich versehen. Nach dieser Renovierung traten erste Schäden und Mängel bereits zu Weihnachten 1995 auf. Da war die Heizung ausgefallen und die Kirchenbesucher saßen im Kalten. Dieses wiederholte sich im Jahr 2009. Hier konnte die Heizung noch einmal notdürftig repariert werden. Weitere Schäden waren jedoch bereits erkennbar. Zum 100jährigen Geburtstag der Gemeinde wurden alle Fenster restauriert und mit Schutzverglasung versehen.

Zahn der Zeit

Nachdem die letzte große Renovierung des Innenraumes nun 35 Jahre zurück lag, zeichnete sich folgendes Bild ab: Der Innenanstrich des Kirchenschiffes war unansehnlich, teilweise bröckelte der Putz und im Gewölbe waren Stockflecken sichtbar. Im Chorgewölbe waren von unten größere Risse in der Decke sichtbar. Die Portaltreppe war schadhaft, der Unterbau gelockert, die Stufen waren zum Teil ausgebrochen oder lose bzw. gegeneinander versetzt. Wegen der Stolpergefahr für die Kirchenbesucher war sie damit nicht verkehrssicher. Die Außenbeleuchtung war defekt bzw. in einem sehr schlechten Zustand. Die Heizung war marode und wurde bereits seit Jahren notdürftig instand gehalten. Die ca. 20 Jahre alte Mikrofon-Anlage entsprach nicht mehr aktuellen Anforderungen. Die Außenfassade wies Risse, Steinabplatzungen und ausgebrochene Fugen auf; gegen abstürzendes Steinmaterial mussten die Kirchenbesucher in den vergangenen Monaten bereits durch eine Holzdachkonstruktion geschützt werden. Der Glockenturm war feucht, die Maßwerke waren schadhaft. Hier bestand dringender Handlungsbedarf.

 

Der Beschluss

Alle diese Schäden und Mängel führten im Jahr 2010 im Presbyterium zu dem Entschluss einen „Masterplan“ für eine Gesamtsanierungsmaßnahme aufzustellen. Neben der Beseitigung der bestehenden Schäden sollte unsere Kirche „fit für die Zukunft“ gemacht werden: Sie soll nicht nur in luftiger Höhe stehen, sondern „auf der Höhe der Zeit“ bleiben. Hierzu zählte auch ein Anbau an die Kirche als mit der Kirche eng verbundene und eine Einheit bildende Begegnungsstätte.

Das Konzept

Unter diesen Aspekten sowie Überlegungen und Visionen zu einem zukünftigen kirchlichen Gemeindeleben wurde das Architektenbüro SOAN aus Bochum Mitte 2010 mit der Erarbeitung eines Konzeptes beauftragt. SOAN ist ein namhaftes Büro, das bereits an vielen Kirchenrenovierungen mitgewirkt hat und ausgezeichnet wurde.

Das Konzept beinhaltete zwei wesentliche Elemente. Zum einen eine Neustrukturierung des Innenraumes der Kirche und zum anderen einen Anbau an die Kirche.

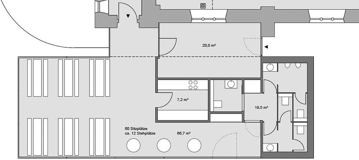
Die Neustrukturierung des Innenraumes sollte mehr Freiräume für unterschiedliche Gottesdienstformen und andere Veranstaltungen bieten. Die Anzahl der Kirchenbänke wurde deutlich reduziert. Es entfielen Bankreihen im vorderen und hinteren Teil des Hauptschiffes. Die Bankreihen in den Seitenschiffen entfielen ganz. Die verbleibenden Bankreihen im Hauptschiff wurden etwas auseinander gezogen, so dass der Zugang zum Altarraum breiter wurde. Im freiwerdenden Hauptschiff war um ein neues Taufbecken als zentrales Element herum variable Stellmöglichkeiten für bis zu 50 Stühle möglich. Für den Großteil aller Gottesdienste sollte die Grundbestuhlung (ca. 160 Plätze) ausreichen. Für besondere Gottesdienste wurde eine Zusatzbestuhlung vorgehalten (200 Plätze). Neben einem neuen Anstrich erfolgte mit dem Einbau einer neuen Warmluftheizung auch ein neuer Steinbodenbelag. Die Elektroinstallation wurde im Zuge der Sanierung angepasst bzw. erneuert, ebenso die Akustikanlage. Durch die Umgestaltung im Innenraum der Kirche entstanden räumliche Erfordernisse, die in dem neuen Anbau organisiert wurden. Neben notwendigem Abstell- bzw. Lagerraum in ausreichender Größe wurde ein Raumprogramm realisiert, welches die Nutzungsmöglichkeiten der Kirche erhöhte. Dazu gehörte eine WC-Anlage, eine Garderobe und eine Küche, die an einen Hauptraum angegliedert ist, geeignet für Besprechungen oder für kleine Gruppen. Je nach Anordnung können sich etwa 20 bis 60 Personen auf Sitzplätzen aufhalten.

Das Konzept wurde der Bauabteilung der Landeskirche und der oberen und unteren Denkmalbehörde Anfang 2011 vorgestellt und akzeptiert. Vor weiteren Planungen sollte jedoch auf Anweisung der Landeskirche ein Sachverständiger den Gesamtzustand der Kirche untersuchen. Dieses Gutachten wurde dem Presbyterium im Mai 2012 vorgelegt. Neben den bereits bekannten wurden weitere Schäden aufgelistet. Insbesondere wurden weitaus größere Schäden an dem Glockenturm und der Fassade festgestellt als bisher erkennbar. Dieses führte zu den o. g. Sicherungsmaßnahmen und hat erhebliche Kosten-Steigerungen bei der Fassadensanierung zur Folge, die das Presbyterium nicht eingeplant hatte.

Der Turm wird eingerüstet

Der Zeitplan

 

Mit den Sanierungsarbeiten sollte im Februar 2013 begonnen werden. So stellte man folgenden Plan für das weitere Vorgehen auf:

2013

  • Februar: Das Turmgerüst wird aufgestellt und die Turmsanierung begonnen
  • Mai: Die Kirche wird leergeräumt, Heizungs- und Bodenarbeiten gestartet.
  • August: Die Turmsanierung wird abgeschlossen
  • September: Die Innenarbeiten laufen an
  • Oktober: Es erfolgen die Malerarbeiten im Kirchenschiff
  • November: Der Estrich wird eingebracht
  • Dezember: 4 Baustellengottesdienste und 1 Gospelkonzert mit Singing Alive finden in der Kirche statt

 2014

  • Februar: Die Fliesenarbeiten (Herdecker Ruhrsandstein) und die Arbeiten am Anbau beginnen
  • April: Richtfest des Anbaus, Wiedereinzug in die renovierte Kirche
  • August 2014: Fertigstellung des Anbaus und Abschluss Restarbeiten

April 2013

Der vorerst letzte Gottesdienst in unserer Kirche fand Ende April 2013 statt. Der Turm war eingerüstet und für eine öffentliche Besichtigung am 28. April 2013 freigegeben. Da die Bauarbeiten am Turm hauptsächlich an der äußeren Fassade erfolgen, wollte man die Gelegenheit nutzen, solange das Baugerüst noch aufgestellt ist. Mehr als 200 Besucher und Fotografen kamen bei ideal trockenem Wetter mit Sonnenschein und Fernsicht zur Turmbesteigung in die Rigeikenstraße. In Kleingruppen erkletterte man den Turm um die fortgeschritten Arbeiten an den Maßwerken zu bestaunen. Die handgefertigten Elemente wurden sämtlich neu eingesetzt und mit Blei verbunden. Die Stützen hatten rostfreie Streben erhalten. An vielen Stellen des Mauerwerkes fehlten Steine, die entweder lose waren und falsch eingesetzt waren. Ca. 150 quaderförmige Ruhrsandsteine warteten bereits auf ihren fachmännischen Einbau. Den Besuchern wurden auch die Hohlstellen im Mauerwerk gezeigt, die verfüllt werden mussten. Die gesamte Fläche der Türme - ca. 550 Quadratmeter - waren gereinigt, die alte Mauerwerksfugenmasse entfernt und die Fugen mit einem mineralischem Mörtel neu verfugt. Unterhalb des Turmes hatte sich spontan der Posaunenchor versammelt und sorgte für die musikalische Begleitung. Auch gab es für die hungrigen Turmbesteiger gebratene Würstchen, belegte Brötchen und erfrischende Getränke zur anschließenden Stärkung.

Vor Abbau des Gerüstes wurde noch das Zifferblatt der Uhr gestrichen. Der Goldanstrich schlug mit 2.500 € zu Buche. Des Weiteren wurden auch einige defekte Schieferplatten ersetzt. Zum Abschluss des ersten Bauabschnittes fehlten nur noch die Sanierung der Treppenanlage. Diese erfolgt jedoch erst nach Fertigstellung der Innensanierung und des Anbaus.

Mai 2013

Im Mai 2013 zog die Kirche dann vorübergehend um. Bis zur Fertigstellung wurden die Gottesdienste sonntags um zehn im Gemeindehaus Bodenborn 48 gefeiert. Gleichzeitig begannen im Inneren die Arbeiten mit der Räumung der Kirche. Die Freiwillige Feuerwehr Bommern hatte Ihre Hilfe angeboten und sämtliche Kirchenbänke in das Gemeindehaus Rigeiken transportiert.

Altar, Kanzel und Orgel wurden zum Schutz gegen Schmutz und Zerstörung eingehaust. Im Anschluss hieran begann die Baufirma Rödiger mit dem Ausbau der Holzpodeste, auf denen die Bänke gestanden haben,  sowie der Bodenplatten. Der gesamte Kirchenraum wurde ca. 50 cm tief ausgehoben. Entsprechend den wärmetechnischen Berechnungen wurden von der Fa. Mahr an vier Stellen die Heizstationen eingebaut und die zugehörigen Leitungen verlegt. Als untere Tragschicht wurde eine 20 cm mächtige Schotterschicht verdichtet eingebaut, hierauf eine 18 cm starke, bewehrte Betonplatte. Wie bei jedem größeren Bauvorhaben benötigen die Innenarbeiten einen größeren Zeitraum als der Rohbau so auch bei der Innenrenovierung unserer Kirche. Nach dem Einbringen und Abbinden der Betonsohle wurden die losen/hohlen Putzflächen unterhalb der Kirchenfenster entlang der gesamten beiden Seitenschiffe abgestemmt. Die Mächtigkeit des Putzes betrug bis zu 5 cm. Der neue Putz musste lagenweise aufgetragen werden und vor jeder neuen Schichtauftragung zunächst ausgetrocknet sein. Diese Arbeiten nahmen einen Zeitraum von ca. 4 Wochen ein.

Das Raumgerüst für die Malerarbeiten wurde zeitweise parallel zu den Innenputzarbeiten in den Kirchenschiffen montiert. Teilweise konnten hierbei Gerüstteile des nicht mehr benötigten Turmgerüstes verwendet werden. Komplizierter war die Montage im Altarbereich und oberhalb der Empore.

Von großflächigen Gerüstbühnen aus unterhalb der gewölbten Decke erfolgen die Malerarbeiten. Vor Aufnahme der Malerarbeiten wurde in nur wenigen Tagen die Grobinstallation für Elektro ausgeführt. Unterputzleitungen für Steckdosen, Beleuchtung und Beschallung wurden verlegt, ebenso Leitungen an den Säulen bis in den Bereich der Kapitelle. Hier wurden LED-Strahler für die Beleuchtung des Kirchenraumes und der Decke installiert. Zusätzliche Strahler werden den Altarraum, den Freiraum vor der Altartreppe und das Taufbecken beleuchten. Sämtliche Leuchten können gedimmt und von einer Zentralstelle angesteuert werden. Die Empore, oberhalb und unterhalb, erhielt eine eigene Beleuchtung. An Haupt- und Nebeneingang wurde eine neue Außenbeleuchtung installiert. Mit haupt- und ehrenamtlichen Mitarbeitern wurde eine Feinabstimmung der Elektroplanung vorgenommen, die auch vor den Estricharbeiten umgesetzt werden konnte.

Zum Einsatz kommt eine Beschallungsanlage, die sowohl für Sprache als auch für Musik geeignet ist. Die Malerarbeiten begannen leider mit einiger Verzögerung. Vor Aufbringen der Grundierung mussten zunächst die im Putz vorhandenen Risse ausgebessert werden.

Oktober 2013

Am 16. Oktober 2013 waren die Malerarbeiten soweit fortgeschritten, dass in einem Teilbereich der Kirche die Farbmuster für Decke, Wände, Säulen und Rippen angelegt waren, so dass Mitglieder des Presbyteriums die endgültige Farbgestaltung festlegen konnten. Das Farbkonzept sah ein Alt-Weiß für die Decken und Wände und ein warmes Grau für die tragenden Teile wie Säulen, Bögen und Rippen vor. Der Schlussstein der Rippen erhielt einen goldenen Anstrich, ebenso wie die oberste Kante der Rippen. Seit diesem Zeitpunkt liefen die Malerarbeiten auf vollen Touren. In der zweiten Novemberwoche waren die Malerarbeiten im Kirchenschiff abgeschlossen, so dass das Raumgerüst wieder demontiert werden kann. Die Eingangsbereiche der Kirche und die Aufgänge in den Türmen wurden anschließend gestrichen. Vor der Wärmedämmung wurde auf dem Betonboden zunächst eine Abdichtung aufgebracht. Ab der 47. KW wurde der Estrich eingebaut werden. Diese Arbeiten nahmen einen Zeitraum von ca. einer Woche in Anspruch nehmen. Die Trockenzeit für den Estrich betrug 4 Wochen, jedoch war eine Begehung der Fläche früher möglich.

Dezember 2013: Weihnachten auf der Baustelle ...

Parallel liefen bei den Verantwortlichen die Planungen für die Durchführung der Weihnachtsgottesdienste an Heilig Abend und des Gospelkonzertes am 2.Weihnachtsfeiertag 2013 in der „halbfertigen", jedoch frisch gestrichenen Kirche. Die Generalprobe für das Krippenspiel der Kinderkirche am 4. Advent fand ebenfalls in der Kirche statt. Die Gottesdienste wurde als Baustellen(Steh)gottesdienste gefeiert, es standen nur wenige Stuhlreihen zur Verfügung. Bis Weihnachten wurde auch die neue Heizungsanlage vollständig installiert und in Betrieb genommen.

Februar 2014 Anbau in Angriff genommen

Mit Datum vom 7. Februar 2014 hatte uns die Stadt Witten endlich die heiß ersehnte Baugenehmigung erteilt. Nur 10 Tage später hatte die Wittener Firma Sachse bereits die Erdarbeiten für die Gründung in Angriff genommen und am 4. März wurden die Fundamente betoniert. Der Rohbau konnte bei normalen Witterungsverhältnissen im April fertig gestellt werden. Geringe Veränderungen gegenüber den ersten Planungen des Anbaus hatten sich in Verschiebungen in der Anordnung der Sanitärräume ergeben. Außerdem erfolgte die Ent-/Belüftung dieser Räume nun auf mechanischer Basis gegenüber natürlicher (Fenster) aus der ursprünglichen Planung.  Parallel lief die Sanierung der Außenfassade im Bereich des Behindertenaufgangs, dessen Nutzung zum Wiedereröffnungsgottesdienst jedoch gewährleistet sein sollte.

März 2014

Nach anfänglichen Startschwierigkeiten in 2014, der ursprünglich vorgesehene Steinbruch konnte die benötigten Natursteinplatten nicht in ausreichender Menge liefern, begann die Fa. Hanser+Pfafferott im Februar mit den Verlegearbeiten für den Bodenbelag. Um die verlorene Zeit teilweise wieder aufzuholen, wurde auch am Samstag gearbeitet. Zeitlich parallel wurden die im Gemeindesaal zwischengelagerten Bänke abgelaugt, vom Schreiner aufgearbeitet, und neu lasiert. Die fertigen Bänke standen zum Wiedereinbau bereit. Im März liefen die Rest- und Feinarbeiten zu den verschiedenen Gewerken sowie die Lieferung und Einbau von Ausstattung und Kunstwerken (z. B Taufbecken, Lesepult) auf Hochtouren. Die Sakristei erhielt ebenfalls einen neuen Innenanstrich und einen neuen Fußbodenbelag. Die Empore wurde auf Wunsch des Posaunenchores auf eine Ebene gebracht, sodass alle Musiker dort auf einer Höhe sitzen können. Aus Sicherheitsgründen wurde die Brüstung um ca. 20 cm zu erhöht. Parallel liefen die Planungen für den Wiedereröffnungsgottesdienst, an dem alle „Musikgruppen" der Kirchengemeinde mitwirken sollten.

April 2014

Die Wiedereröffnung der Kirche erfolgte am 6. April 2014. Mit dem Wiedereröffnungsgottesdienst am Sonntag Judika, 6. April, stand das nächste Großereignis in unserer Kirchengemeinde bevor.

Rund ein Jahr musste die Gemeinde auf ihre Kirche verzichten. Doch das Warten hat sich gelohnt. Denn so viel kann man trotz der noch bis zum Herbst 2014 laufenden Bauarbeiten schon deutlich sehen: Sie ist wunderschön geworden. Hell und luftig, modern ohne kühl zu wirken, Altes wurde bewahrt und mit Neuem geschickt kombiniert. Altweiß sind die Wände nun gestrichen, mit Grau und zart-goldenen Streifen abgesetzt. Nur im Mittelschiff stehen noch Bänke, fast 50 weniger als zuvor. Der Gang ist breiter, die Seitenschiffe sind frei, ebenso wie die Vierung. Hier, auf der großen Fläche zwischen Schiff und Chorraum, liegt jetzt ein dicker, sandfarbener Teppich. In sieben Sprachen ist in einem großen Rund der Taufspruch eingewebt. „Denn siehe, ich bin bei Euch . . .“ In der Mitte dieses Kreises steht das neue Taufbecken. Das schwere, massive Prachtstück in der Form eines klassischen Taufsteins funkelt und glänzt, als wäre es auf purem Gold von einem armenischen Künstler geschaffen und von einem Bommeraner gespendet.